An Architect Firm in Cleveland
i Terzi Romani – “The Third Romans”
Over 160 Designs Completed Since 2018.
Ohio Certificate #26315025 ; Expires on 06/30/2027
Commercial + Residential Remodels, Additions, & New Construction
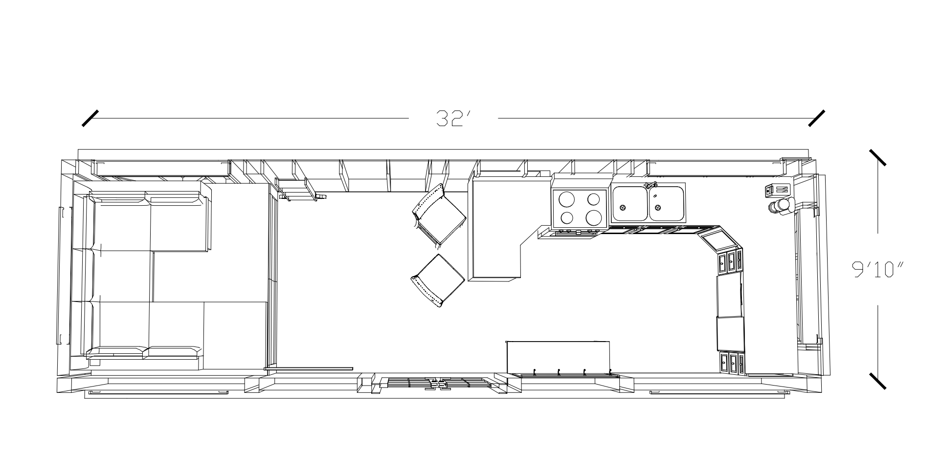
Portfolio of Renderings
Project Types
New Homes & Interior Remodels
This is the project type we have the most experience. Both remodels/additions as well as new construction.
Each project is about 30-200 hours including multiple designs, with accompanying video tours, in order for you to see and finalize a design that both the client and architect collaborate on.
Commercial / Mixed Use
Experienced in designing cafés, restaurants, condominium complexes, work spaces and offices, libraries, mixed use developments, industrial spaces, schools, adaptive reuse proposals on existing buildings, to name a few. Projects designed in Rome, the Caribbean, Montana, Colorado, New Mexico, Arizona, New Jersey, California, and Ohio.
Greenhouses
Over 6 different sunken geothermal heated and cooled greenhouse designs in our portfolio so far.
Massively influenced by Russ Finch, the designer, owner, and creator of the Greenhouse in the Snow company in Alliance, Nebraska.
Interior Design & Custom Furniture
We can have plenty experience designing kitchens, and can also create custom furniture pieces.
Completed projects include: full kitchen and bathroom remodels, office remodels, gazebos built in the British Virgin Islands, bunk beds, murphy beds, custom couches, kitchen islands, mud room and kitchen casework and cabinetry, etc. etc.
Art Exhibits & Pieces
Designed and built an exhibition on how to renovate an existing barn in Montana to become a greenhouse. Also worked on repurposing Palladio’s abandoned Villa Zeno into a geothermal cooled and heated greenhouse.
In 2024, worked on an initial 3D model for the built exhibition, entitled the H E A R T H that was displayed at Burning Man.
Modeling Existing Structures
Can model existing structures for takeoff estimates, making mini architectural models, or to create 3D computer models that are either based off designs on paper / old blueprints or from photos and measurements made in the field.
Can also make structural models for sequencing and phasing, to aide in construction and coordination on complex builds.
“Hire us to design your residential or commercial projects in and around Cleveland.”

Chris Brizzolara AIA
Earned 2 Master of Architecture Degrees
Montana State University (2023) & la Università di Roma (2020)
Ohio Licensed Architect – #2620223 ; Expires 12/31/2027 ; AIA# 40897556
DESIGN PHILOSOPHY: We aim to design energy independent buildings that prioritize: Resiliency to the Local Climate, New Technology, & Symbolism Expressed in Form. Additionally, every structure we design must also balance:
Proportions, Scale, Cadence, Tectonics, and Material Presence.
As Andrea Palladio, our most influential architect in the past 500 years, puts it, ““Beauty will result from the form and the correspondence of the whole, with respect to the several parts, of the parts with regard to each other, and of these again to the whole; that the structure may appear an entire and complete body, wherein each member agrees with the other, and all necessary to compose what you intend to form.”
So hire us and let’s work together as a team to design energy independent homes and commercial properties all around the world.
BUSINESS: We charge a flat fee that is a percentage of the value we created, similar to how realtors charge commission fees. This percentage is based off the project’s scope and timeline, and it is agreed upon by both parties before any work can begin.
However on certain projects or if preferred, we can also charge hourly with a Maximum Price Guaranteed on almost all bids.
ADDITIONAL SERVICES: We can also perform additional services to be charged on an hourly rate for the following: energy modeling, solar calculations, structural engineering diagrams, construction sequencing, interior design, cabinetry and casework design, custom furniture, artwork pieces, construction administration, etc. etc.
Please note, the client is responsible for hiring any additional firms / professionals required for their builds such as: contractors, engineers, interior designers, etc. etc. We are an architect firm in charge of creating the design, models, blueprints, and observing the construction to be compliant and abiding to the design documents.
NOTICE: “Ohio law always requires that the individual sealing the documents have a written contract with the client for services; possess direct professional knowledge and direct supervisory control of the designs from inception to completion before applying their seal.
Architects cannot seal plans prepared by another person even if they make a complete, comprehensive review and agree to take responsibility. This is considered ‘plan stamping,’ or aiding and abetting the unlicensed practice of architecture. Architects also cannot, as a general rule, seal manufacturer’s cut sheets, equipment or shop drawings, or HVAC hood drawings prepared by others. If the licensee did not prepare, design, create or author the work, it should not be sealed.”
– arc.ohio.gov
DISCLAIMER: All commercial and residential projects will require hiring a structural engineering firm that will be it’s own entity, and not part of our company nor our scope. And they will contract with the client directly, just as how the contractors will.
CORE EXPERTISE: Full-service designs via computer modeling and rendering, as well high-quality, detailed construction documents and blueprints needed to construct resilient, net positive buildings that incorporate New Technology, & Expressed Symbolism.





















































































































































